MUTTUKADU, KOVALAM

STATUS: UNDER CONSTRUCTION

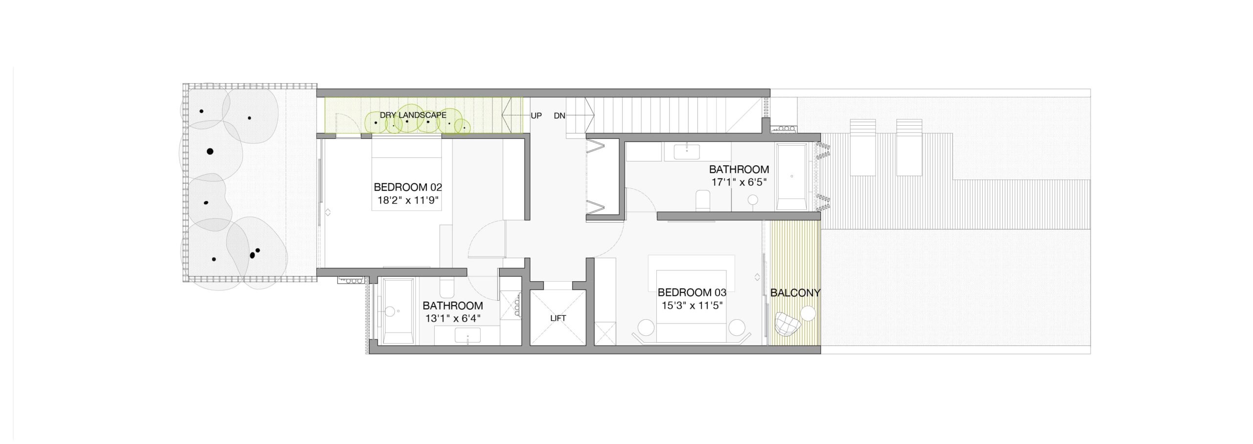
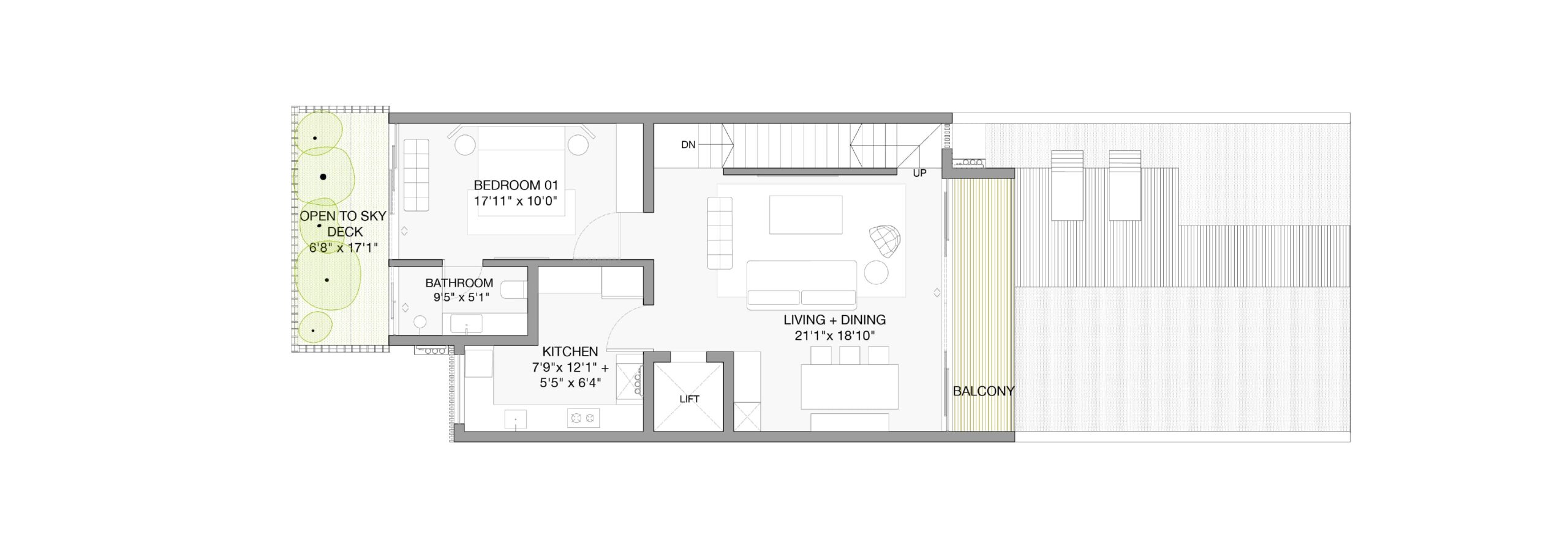
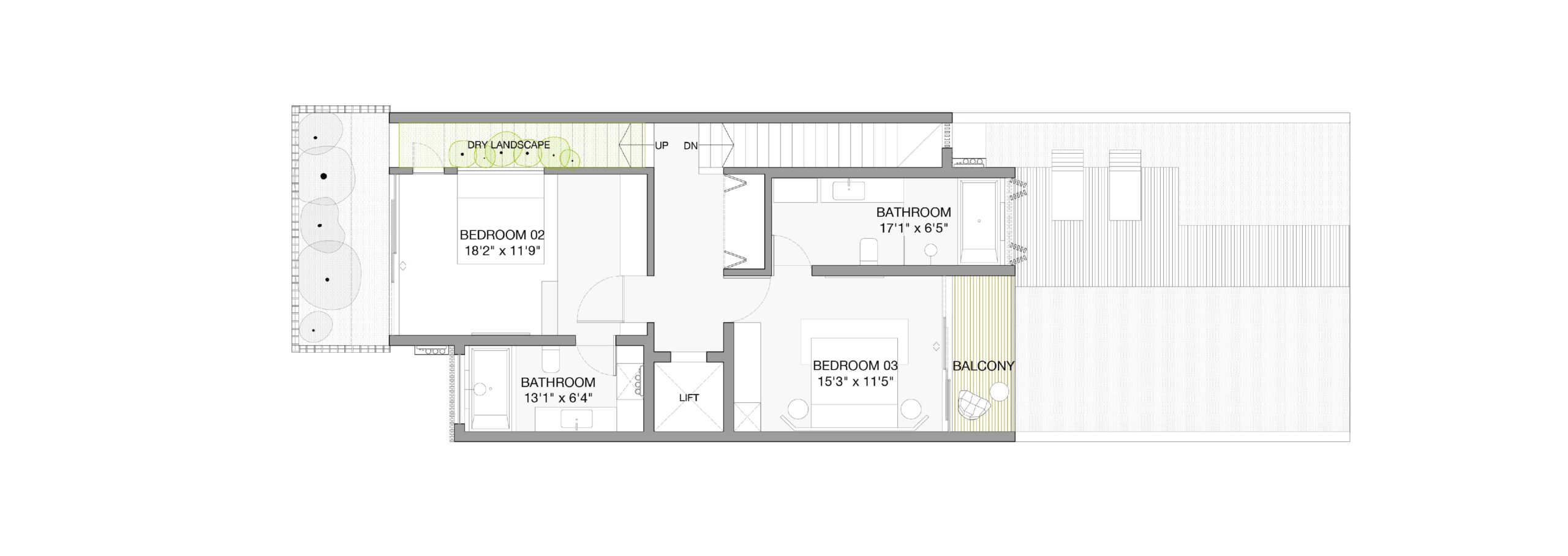
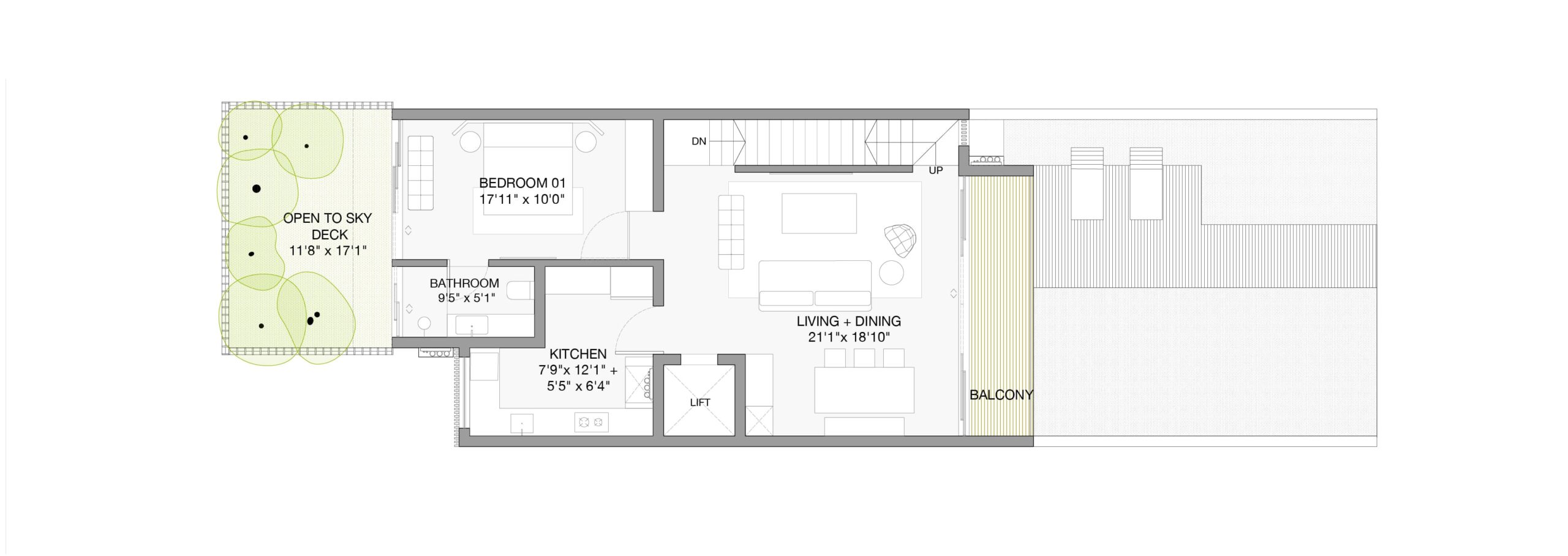
Corsia is a one-of-a-kind experiential home crafted for those who appreciate the finer things. A true escape tucked by the Muttukadu backwaters. Set across half an acre, it features 5 all-inclusive villas that blend bold automotive-inspired design with the calm of nature.

From private infinity pools and rooftop lounges to an indoor car showcase and a personal aviary, Corsia offers a lifestyle that is as indulgent as it is intentional. A perfect sanctuary for those who live fast, but unwind slow.

GALLERY

AMENITIES

WALKING DISTANCE FROM KOVALAM BEACH

INDOOR CAR
DISPLAY

INDOOR
AVIARY

PRIVATE
INFINITY POOL

PRIVATE
LIFT

FULLY FURNISHED
ALL INCLUSIVE VILLAS

2 BATHROOMS
WITH BATHTUBS

2 CAR
PARKS

PRIVATE ACCESS
TO MUTTUKADU
BACKWATERS

PARTNERED WITH STAY VISTA

SITE LOCATION